WARNING: JavaScript is disabled in your browser.
This website requires javascript to be enabled. Your experience will be limited without it. Please turn javascript on in your browser.
NorthernWasatchRealty.com
Call us at
(801) 781-0360
Send an
email
Toggle navigation
Search
Search with Map
Just Listed
Search by City
Search by Zip Code
Search by MLS Number
Featured Listings
Price Changes
Homes Near Me
Home Search
Land Search
Just Listed
Price Changes
Your Favorites
Home Value
About
About
Testimonials
Login
Signup
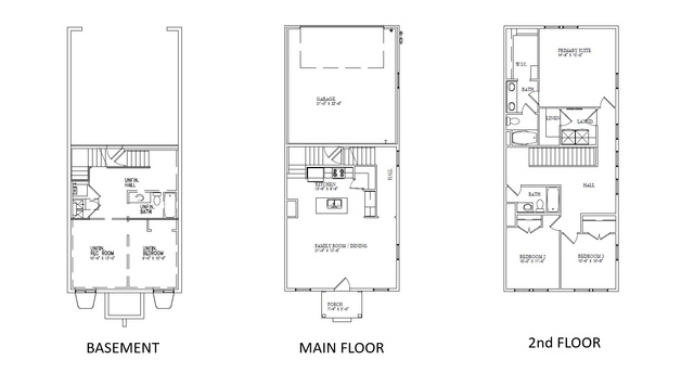
Pictures: 871 S Mathilda Dr #246 in Saratoga Springs
$479,990  
3
bed |
2
bath |
2,364
sqft |
⬤
Available
View
full details: MLS #2132234
Map
City
Zip
Featured
MLS #
Just Listed
Favorites
Scroll up